Bekabeling HY Indenor <=> benzine
Bekabeling HY Indenor <=> benzine
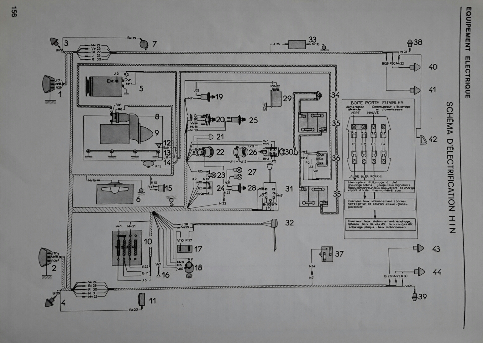
Heeft er iemand een elektrisch schema, aansluiting motorruimte voor een HY met een Indenor diesel motor, door een elektrische kortsluiting is heel de kabelboom van de motorruimte gesmolten, ik heb een nieuwe kabelboom besteld, maar dat is voor een benzinemotor.
Dus ik zoek een elektrisch schema voor een citroen HY met een Indenor motor, zodat ik de bekabeling van de benzine motor kan ombouwen naar een indenor diesel bekabeling.
Bedankt en merci.
Bram
Dus ik zoek een elektrisch schema voor een citroen HY met een Indenor motor, zodat ik de bekabeling van de benzine motor kan ombouwen naar een indenor diesel bekabeling.
Bedankt en merci.
Bram
Re: Bekabeling HY Indenor <=> benzine
Er zwerft wel ergens een schema rond op internet. Bij het Hy Team kun je hem ook downloaden. Ik heb trouwens zelf ook een Indenor. Dus dat moet vast goed komen.
Groet Marko.
Verstuurd vanaf mijn SM-G920F met Tapatalk
Groet Marko.
Verstuurd vanaf mijn SM-G920F met Tapatalk
Re: Bekabeling HY Indenor <=> benzine
Dat exemplaar uit het werkplaatshandboek heb ik inderdaad ook gevonden via het net. Heeft er iemand toevallig een beter leesbare versie hiervan? Ik heb mijn kabelboom via citroworld besteld, heeft iemand toevallig de verklaring van de nummertjes en kleurtjes hiervan in pdf?
Re: Bekabeling HY Indenor <=> benzine
Was de gehele kabelboom weg? Het aantal kabels is gering en als je toch aanpassen gaat zou je ook zelf een eigen deel kabelboom kunnen maken.
- HYvonne
- HY Forum Grootmeester

- Berichten: 1059
- Lid geworden op: wo jun 14, 2006 7:41 am
- Locatie: Zuid-Limburg
Re: Bekabeling HY Indenor <=> benzine
Bram, hier komt ie................
(ps. verschrikkelijk mooie restauratie)
(ps. verschrikkelijk mooie restauratie)

